Trilocale in vendita

Cornaredo, Via milano - San Pietro All'Olmo
€ 225.000
3 locali 3 locali
90 Mq 90 Mq
1 bagno 1 bagno

Trilocale in vendita

Cornaredo, Via milano - San Pietro All'Olmo

Descrizione annuncio

L'appartamento si trova al 7° piano di una delle palazzine con la vista più bella di Cornaredo, garantendo all’immobile un'esclusiva vista sul paese, rendendolo davvero speciale!

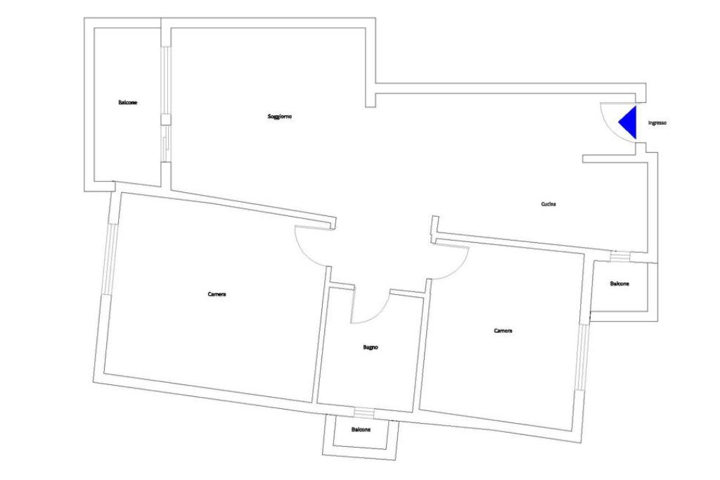
L’appartamento è composto da:

ZONA GIORNO: Accesso diretto nella zona giorno composta da un ampio soggiorno e da una comoda e pratica cucina a vista. Completano la zona giorno un balcone a servizio del soggiorno, e un balconcino a servizio della cucina.

ZONA NOTTE: Un disimpegno, conduce poi alla zona notte, composta da una camera da letto matrimoniale, una cameretta accogliente e da un bagno con balconcino,

I punti di forza dell’abitazione sono sicuramente la completa ristrutturazione subita nel 2018, che ha reso moderno e funzionale l’intero appartamento, ma ancora di più la tripla esposizione che rende l’immobile luminoso e le stanze sempre arieggiate.

La zona in cui è ubicato l'immobile è sicuramente una delle zone più servite del paese, infatti si raggiunge comodamente a piedi la Via Novara, la quale offre ogni tipo di servizio. Per esempio sono vicine le fermate dei Bus da e per Milano, oppure ancora sono vicini numerosi negozi per ogni tipo di esigenza.

Si tratta inoltre di una zona molto apprezzata dalle famiglie, in quanto a pochi metri di distanza si trovano la scuola media, la scuola dell’infanzia e numerosi parchi per bambini.

SPESE DI CONDOMINIO: Le spese di condominio su base annua sono 2400 Euro circa e comprendono tutti i costi di condominio comuni oltre alla quota fissa e a quella a consumo del riscaldamento e dell'acqua calda sanitaria, questi ultimi servizi sono entrambi centralizzati.

INFORMAZIONI AGGIUNTIVE:

- zanzariere

- aria condizionata in: soggiorno, camera matrimoniale e disimpegno

- videocitofono

- Cantina e solaio inclusi nel prezzo

Il nostro staff di consulenza creditizia è a disposizione per proporvi il mutuo o il finanziamento più adatto alle vostre esigenze.

Contattateci per fissare un incontro gratuito nei nostri uffici.

Cercateci su Facebook come 'Gruppo Tecnocasa San Pietro', visitate e mettete 'Mi Piace' sulla nostra pagina 'Gruppo Tecnocasa (Tecnocasa Cornaredo San Pietro)'.

Per appuntamenti, i nostri incaricati sono disponibili:

- Lunedì al venerdì: 9.30-12.30 e 14.30-20.00

- Sabato: 9.30-12.30 e 14.30-18.00

Ogni agenzia ha un proprio titolare ed è autonoma.

Mostra tutto

Nelle vicinanze

Trasporto pubblico Trasporto pubblico
Via Milano - Via Garibaldi (Cornaredo)
Via Milano - Via Garibaldi (Cornaredo)
180 m
Via Milano - Via San Siro (Cornaredo)
Via Milano - Via San Siro (Cornaredo)
200 m
Ricariche auto elettriche Ricariche auto elettriche
Cornaredo Colombo | EnelX
310 m
Lidl Cornaredo
330 m
Cornaredo Don Sturzo | EnelX
470 m
Centro Sportivo Comunale "S.Pertini" | EnelX
800 m
Cornaredo Brera | EnelX
1,1 Km
Scuole Scuole
Scuola Media Ludovico Muratori
270 m
Scuole
560 m
Scuola Elementare di Vighignolo
1,5 Km
Scuola elementare
2,2 Km
Scuola Media Statale "Paolo Sarpi"
2,2 Km
Farmacia Farmacia
Farmacia
50 m
Farmacia San Martino
1,5 Km
Farmacia Culzoni SNC
2,1 Km
Farmacia Caiezza
2,5 Km
Farmacia europea
2,7 Km
Supermercati Supermercati
NaturaSì
350 m
Lidl
380 m
Bennet
600 m
Carrefour
880 m
Cooperativa di Consumo
1,2 Km
Negozi Negozi
I sapori del granaio
950 m
Negozi
1,1 Km
ATLETAMANIA
1,2 Km
Giry
1,3 Km
Mauro il Fornaio
1,7 Km
Bar Bar
Garden Bar
290 m
El Merendero
970 m
Bar
1,6 Km
Le Cascine
2,1 Km
Central Bar
2,1 Km
Ristoranti Ristoranti
Il Grifo
30 m
Da Rosario e Maria
220 m
Opificio del Gusto
330 m
Il Corniolo
370 m
Pizzeria Marechiaro
810 m
Mostra tutto

Caratteristiche

Rif.:
61120282
Piano:
7 di 8 con ascensore (Piano alto)
Balconi:
3
Camere da letto:
2
Arredamento:
Assente
Condizionamento:
Autonomo
Mostra tutto
Prezzo Prezzo
€ 225.000
Rata mutuo Rata mutuo
€ 1.040 / mese
Spese annue Spese annue
€ 2.400
Proponi il tuo prezzoProponi il tuo prezzo

Classe Energetica

G
G
G
G
G
G
G
G
G
EP globale non rinnovabile:
190.00 kW h/m² anno
EP globale rinnovabile:
190.00 kW h/m² anno
EP invernale del fabbricato:
EP estiva del fabbricato:
Anno di costruzione:
1975
Riscaldamento:
Centralizzato
Tipo impianto:
A radiatori
Tipo alimentazione:
Metano

Ti interessa visionare l'immobile?

Fissa un appuntamento  Fissa un appuntamento

Richiedi informazioni

* Questi campi sono obbligatori

Calcola il tuo mutuo

Semplice e senza impegno
Anticipo

( % )
Mutuo

( % )

pochi semplici passi

inserisci i tuoi dati
Questionario completato
Grazie per aver richiesto un appuntamento senza impegno con un nostro Consulente del Credito e Assicurativo.

Hai inserito correttamente tutti i dati necessari e a breve riceverai una e-mail con un link da convalidare per inviare i tuoi dati.
Affiliato
Teseo Srl
P.zza Dubini, 27 20010 Cornaredo (MI)

Il nostro staff


  • Andrea Taramelli
    Affiliato

  • Davide Zenato
    Collaboratore

  • Desiré Parisi
    Coordinatrice

  • Manuele Rachiele
    Responsabile
P.zza Dubini, 27 20010 Cornaredo (MI)
Zona: Cornaredo - Zona San Pietro all'Olmo
Mostra su mappa
Orari: Lunedì - Venerdì 9.30 - 12.30 14.30 - 20.00 Sab. 9.30 - 12.30 14.30 - 18.00
Affiliato
Teseo Srl
P.zza Dubini, 27 20010 Cornaredo (MI)

2025 Tecnocasa Franchising S.p.A. - P. IVA 08365160152 - Via Monte Bianco 60/A 20089 Rozzano (MI). Ogni agenzia ha un proprio titolare ed è autonoma. Privacy policy | Policy utilizzo | Cookie policy