Quadrilocale in vendita

Cornaredo, Via filanda - San Pietro All'Olmo
€ 495.000
4 locali 4 locali
270 Mq 270 Mq
3 bagni 3 bagni

Quadrilocale in vendita

Cornaredo, Via filanda - San Pietro All'Olmo

Descrizione annuncio

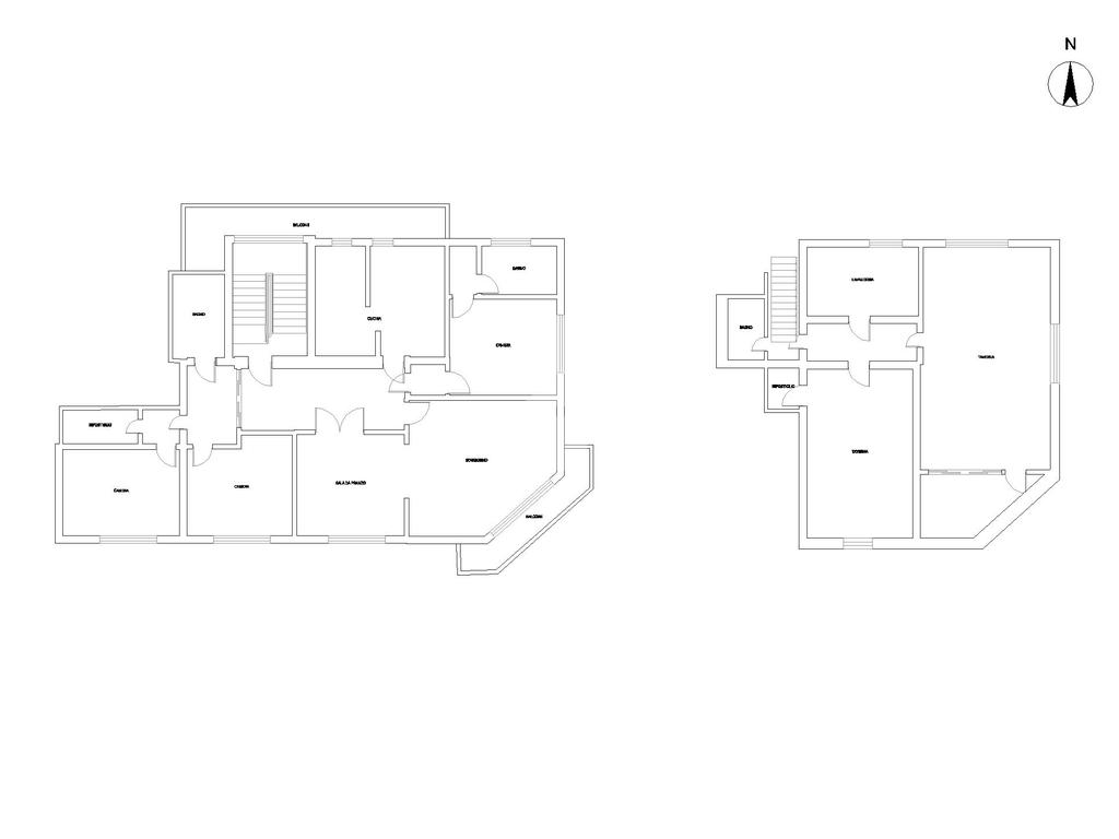
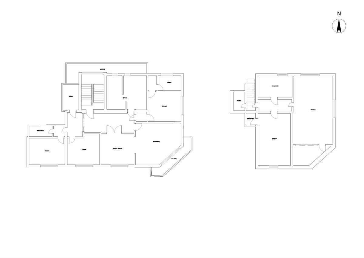
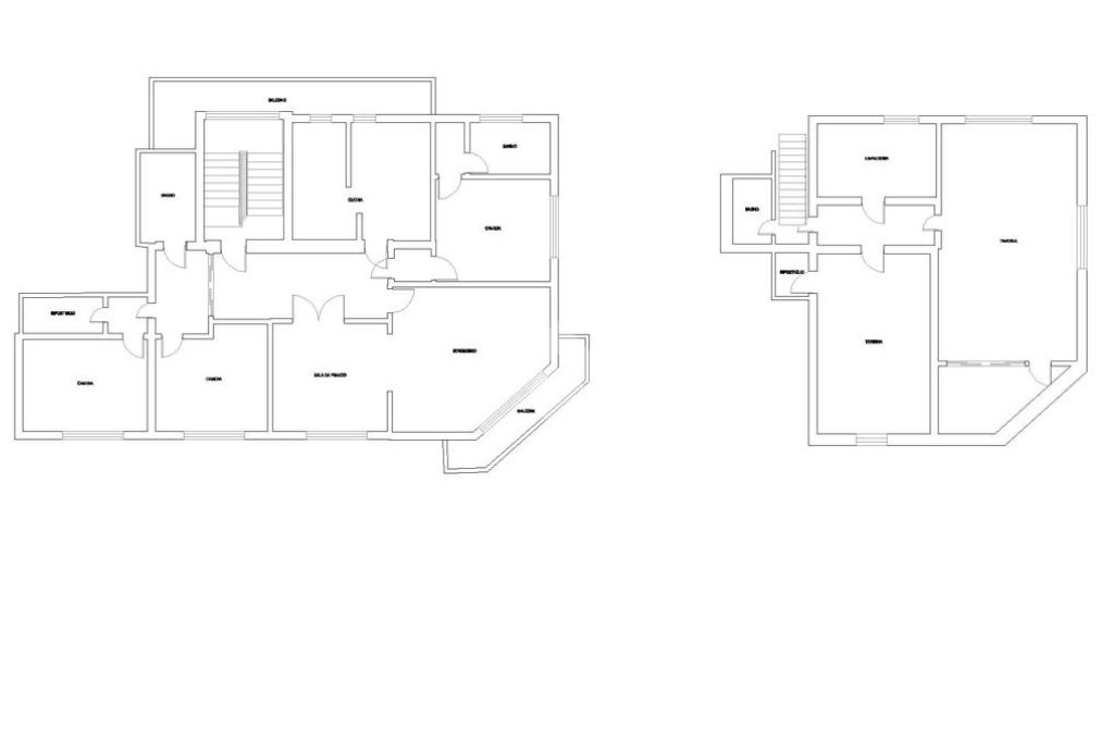
APPARTAMENTO DI 200 MQ IN PALAZZINA SEMINDIPENDENTE.

Oggetto della vendita è un'intera porzione di palazzina che gode di accesso da un corpo scala privato ed esclusivo. Al primo piano si trovano tutti i locali abitabili che compongono l'appartamento mentre al piano seminterrato si trovano una taverna, uno studio, un bagno ed una lavanderia.

L'APPARTAMENTO DISPONE DI UNA ZONA GIORNO E DI UNA ZONA NOTTE

ZONA GIORNO: La zona giorno è costituita da un'ampia area d'ingresso che, accompagna nell'ambiente soggiorno, un doppio locale con balcone, le cui generosissime dimensioni permettono di avere un agevole spazio pranzo ed un'area relax molto confortevole. Completa la zona giorno una cucina abitabile, dotata di un comodo balcone che affaccia sul cortile interno e che offre un ulteriore spazio all'aperto.

ZONA NOTTE: La zona notte è divisa in due porzioni distinte; da un lato è collocata un'ampia camera da letto matrimoniale con bagno privato finestrato e con vasca, dall'altro lato sono posizionate ulteriori due camere da letto, dalle generose metrature, oltre ad un bagno finestrato, completo di vasca e ad un ripostiglio.

PECULIARITÀ: La metratura dell'appartamento raggiunge i 200 mq. disposti su un unico piano. Una superficie così ampia è difficilmente disponibile e quando si riesce a trovare, in genere, è distribuita su più livelli. Un ulteriore esclusività della proposta consiste nella presenza dell'ampia zona seminterrata che, collegata all'appartamento dal corpo scala privato, con scala rivestita in marmo. L' appartamento presenta inoltre finiture di pregio, che furono curate in ogni dettaglio e molte delle quali risultano piacevoli anche oggi.

PIANO SEMINTERRATO: Il piano seminterrato, la cui metratura è superiore ai 100 oltre ad essere collegato dalla scala interna sopradescritta, possiede anche un ulteriore accesso esterno ed indipendente, dal cortile. Quest'ultima, completamente rifinita, è dotata d'impianti del tutto similari all'abitazione e gode della presenza, nel piano, di un piccolo bagno.

POSIZIONE E VICINANZA AI SERVIZI: La zona dove l'immobile è sicuramente una delle zone più servite del paese, infatti si raggiunge comodamente a piedi la Via Novara, la quale offre ogni tipo di servizio. Per esempio sono vicine le fermate dei Bus da e per Milano, oppure ancora sono vicini numerosi negozi per ogni tipo di esigenza. Si tratta inoltre di una zona molto apprezzata dalle famiglie, in quanto a pochi metri di distanza si trovano la scuola media, la scuola dell'infanzia e numerosi parchi per bambini.

INFORMAZIONI AGGIUNTIVE: Esiste la possibilità di acquistare a parte uno spazio da destinare a posti auto coperti.

Il nostro staff di consulenza creditizia è a disposizione per proporvi il mutuo o il finanziamento più adatto alle vostre esigenze. Contattateci per fissare un incontro gratuito nei nostri uffici. Cercateci su Facebook come 'Tecnocasa San Pietro', visitate e mettete 'Mi Piace' sulla nostra pagina 'Tecnocasa San Pietro'. Per appuntamenti, i nostri incaricati sono disponibili: dal Lunedì al venerdì: 09.30-12.30 e 14.30-20.00 e il Sabato: 09.30-12.30 e 14.30-18.00 Ogni agenzia ha un proprio titolare ed è .

Mostra tutto

Nelle vicinanze

Trasporto pubblico Trasporto pubblico
Piazza Dubini (San Pietro all'Olmo)
Piazza Dubini (San Pietro all'Olmo)
20 m
Via Milano - Via Roma (Cornaredo)
Via Milano - Via Roma (Cornaredo)
500 m
stazione di Pregnana Milanese
stazione di Pregnana Milanese
2,7 Km
Ricariche auto elettriche Ricariche auto elettriche
Cornaredo Vittorio Veneto | EnelX
320 m
Lidl Cornaredo
620 m
Centro Sportivo Comunale "S.Pertini" | EnelX
860 m
Cornaredo Colombo | EnelX
980 m
Cornaredo Don Sturzo | EnelX
1,4 Km
Scuole Scuole
Scuole
190 m
Scuola Media Ludovico Muratori
1,0 Km
Scuola elementare istituto Luigi Perlasca
2,0 Km
Scuola Elementare di Vighignolo
2,4 Km
Farmacia Farmacia
Farmacia
70 m
Farmacia San Martino
530 m
Farmacia Caiezza
1,7 Km
Farmacia europea
1,8 Km
Supermercati Supermercati
Lidl
570 m
Sigma
730 m
Carrefour Market
1,3 Km
NaturaSì
1,3 Km
COOP
1,4 Km
Negozi Negozi
I sapori del granaio
30 m
Negozi
190 m
ATLETAMANIA
280 m
Giry
310 m
Mauro il Fornaio
740 m
Bar Bar
El Merendero
40 m
Garden Bar
660 m
La Piazzetta
1,2 Km
ChocoLù Bar
1,5 Km
Le Cascine
1,6 Km
Ristoranti Ristoranti
Orca
20 m
Ristoranti
40 m
D'O
180 m
RistorantE20
250 m
Le 3 meraviglie
580 m
Mostra tutto

Caratteristiche

Rif.:
61163664
Piano:
1 di 1 (Piano medio)
Balconi:
2
Camere da letto:
3
Arredamento:
Assente
Condizionamento:
Autonomo
Mostra tutto
Prezzo Prezzo
€ 495.000
Rata mutuo Rata mutuo
€ 2.349 / mese
Spese annue Spese annue
€ 0
Proponi il tuo prezzoProponi il tuo prezzo

Classe Energetica

E
E
E
E
E
E
E
E
E
EP globale non rinnovabile:
187.42 kW h/m² anno
EP globale rinnovabile:
0.97 kW h/m² anno
EP invernale del fabbricato:
EP estiva del fabbricato:
Anno di costruzione:
1980
Riscaldamento:
Autonomo
Tipo impianto:
A radiatori
Tipo alimentazione:
Metano

Ti interessa visionare l'immobile?

Fissa un appuntamento  Fissa un appuntamento

Richiedi informazioni

Clicca su Leggi per aprire l'informativa
* Questi campi sono obbligatori

Calcola il tuo mutuo

Semplice e senza impegno
Anticipo

( % )
Mutuo

( % )

pochi semplici passi

inserisci i tuoi dati
Questionario completato
Grazie per aver richiesto un appuntamento senza impegno con un nostro Consulente del Credito e Assicurativo.

Hai inserito correttamente tutti i dati necessari e a breve riceverai una e-mail con un link da convalidare per inviare i tuoi dati.
Affiliato
Teseo Srl
P.zza Dubini, 27 20010 Cornaredo (MI)

Il nostro staff


  • Andrea Taramelli
    Affiliato

  • Davide Zenato
    Collaboratore

  • Desiré Parisi
    Coordinatrice

  • Manuele Rachiele
    Responsabile
P.zza Dubini, 27 20010 Cornaredo (MI)
Zona: Cornaredo - Zona San Pietro all'Olmo
Mostra su mappa
Orari: Lunedì - Venerdì 9.30 - 12.30 14.30 - 20.00 Sab. 9.30 - 12.30 14.30 - 18.00
Affiliato
Teseo Srl
P.zza Dubini, 27 20010 Cornaredo (MI)

2026 Tecnocasa Franchising S.p.A. - P. IVA 08365160152 - Via Monte Bianco 60/A 20089 Rozzano (MI). Ogni agenzia ha un proprio titolare ed è autonoma. Privacy policy | Policy utilizzo | Cookie policy